

Project Overview
Hennur Road, Bengaluru
2 & 3 BHK Homes in Bengaluru Starting at Rs. 57.3 Lakh* | OC Received for Phase-1 & Phase -2
Welcome to a celebration of life at Raaga by Kolte-Patil Developers – a premium gated community on Hennur Road, North Bengaluru, offering a symphony of peaceful residences and vibrant community spaces. Located off Hennur Main Road and close to Manyata Tech Park, Raaga keeps you well connected to work and leisure while offering a serene living experience.
Soak up a lifestyle crafted for you in thoughtfully designed 2 & 3 BHK flats in Hennur Road, Bengaluru, with a selection of premium amenities. With Phase 1 & Phase 2 ready-to-move-in apartments and Occupation Certificate already in place, Raaga ensures a seamless home-buying experience.
Key Highlights:
✅ Handpicked lifestyle amenities – clubhouse, swimming pool, gym, health club & more
✅ Just 15 mins to Manyata Tech Park and 25 mins to Hebbal
✅ 10-min connectivity to Outer Ring Road for hassle-free commuting
✅ Well connected to Kempegowda International Airport (20 kms) and Bellary Road (5 kms)
Experience elevated living at Raaga, Hennur Road – one of the most sought-after residential projects in North Bangalore.

Discover the Rhythm of Life at Raaga
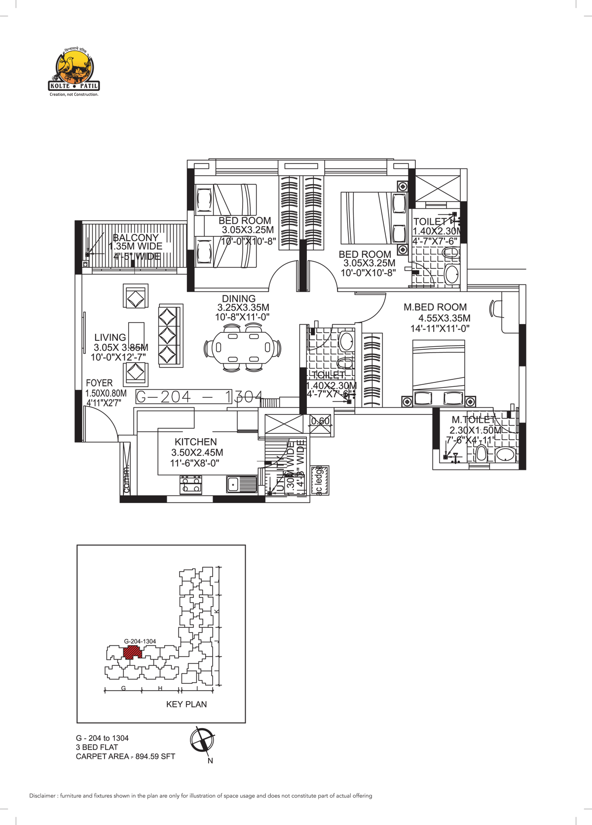
Spacious 2 & 3 BHK homes with large master bedrooms
Project Amenities
Project Location
7.3 KM Manyata Tech Park
Reach work without the hassle of travelling to far
5.7 KM Delhi Public School Bangalore North
Quality education for your kids, just a stone’s throw away
3.6 KM Regal Hospital
Top-class healthcare facilities for you in close vicinity
20 KM Bengaluru International Airport
Take off and land with ease and with no added travel time
6 KM Yelahanka Railway Station
With railways so close, be on track with your travel plans
9.4 KM Elements Mall
Just a short distance to enjoy a bit of shopping & recreation
Raaga
Hennur Road, Bengaluru

Enquire Now
The project has been registered via RERA registration number Phase II-PRM/KA/RERA/1251/446/PR/171014/000856 under registered projects.
The Contents including brochures and marketing collateral displayed/provided on this website are solely for informational purposes and is not intended to constitute an offer or solicitation as this website is under updation/reconstruction. It is Artistic impression/Schematic representation of the project shown on this site and is indicative of how the unit can be used. No furniture/s or accessories shown in the visuals are provided with the unit/tenement/apartment. This web site material does not constitutes an offer and / or contract of any type between the Developer/Promoter/Owner and the recipient, all intending purchaser/s in this project shall be governed by the terms and conditions envisaged under The Real Estate (Regulation And Development) Act 2016. Nothing on the website should be misconstrued as advertising, marketing, booking, selling or an offer for sale or invitation to purchase a unit in any project by the company/firm. The company/firm is not responsible for the consequences of any action taken by the viewer relying on such material/information on this website. Project financed by “ Kotak Mahindra Investments Ltd